BLUE HERON | |
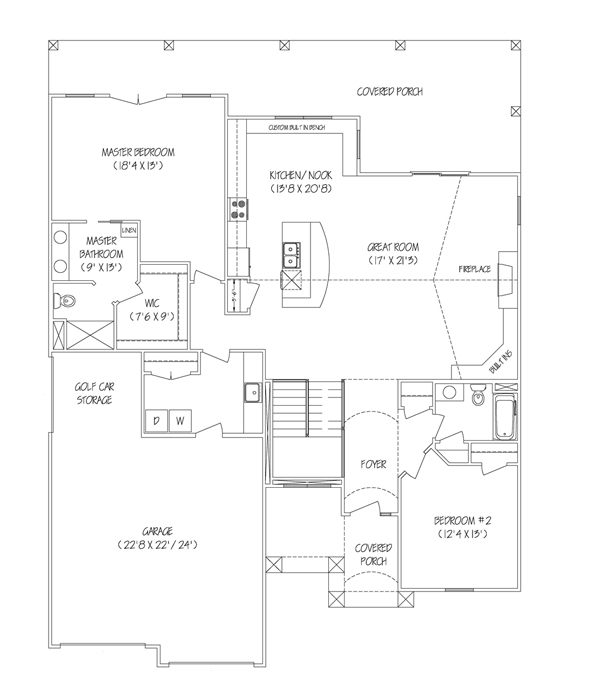
A Luxurious Waterfront Home with open floor plan and spacious kitchen. Beautiful Yorktowne cabinets and granite counter tops. 5 bedrooms & a bonus play room. The living area has gas fireplace & custom built cabinets. The full finished walkout basement provides extra space for entertaining. Greatroom with full kitchen/bar downstairs. Covered patio. |
![]() |
FEATURES3,800 Square Feet View Floor Plan |
|
![]() |
![]() |
![]() |
| The Lexington 3 Bedrooms, 2 1/2 Baths 3,025 Square Feet |
The Del Monte Manor 3 Bedrooms, 2 1/2 Baths Full Finished Basement |
The Nicole |
| More | More | More |
| 937-492-8640 937-440-0605 937-394-7775 Fax: 937-394-7776 |
Shreves Construction PO BOX 792 Sidney, OH 45365 |
![]() |
![]() |














