THE NICOLE | |
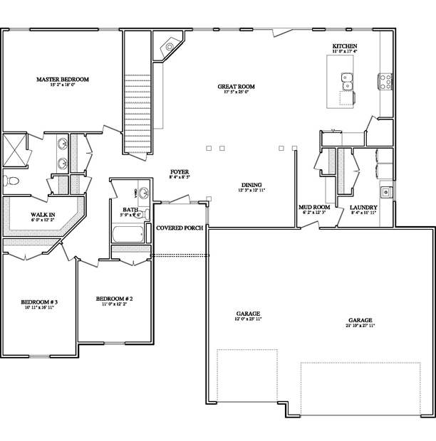
This ranch style home has a perfect layout that is suitable for all families. It contains three bedrooms, two baths, a huge bonus room in the upstairs, and a large laundry room. The kitchen contains oak cabinetry and has a nice breakfast nook. The dining room sets right off to the side of the kitchen, to make entertaining easy. You will see that the large great room is shown off with the extra little touches, a cathedral ceiling, the built in shelves, and a gas fireplace. The master bedroom contains a spacious bathroom with a soaker tub and a large walk in closet. You can find that the Nicole contains a full walkout basement, 2 car garage, rear deck, and 6 panel poplar doors and trim.
|
![]() |
FEATURES2,026 Square Feet View Floor Plan |
|
![]() |
![]() |
![]() |
| The Lexington 3 Bedrooms, 2 1/2 Baths 3,025 Square Feet |
The Del Monte Manor 3 Bedrooms, 2 1/2 Baths Full Finished Basement |
The Nicole |
| More | More | More |
| 937-492-8640 937-440-0605 937-394-7775 Fax: 937-394-7776 |
Shreves Construction PO BOX 792 Sidney, OH 45365 |
![]() |
![]() |












