DAVIS | |
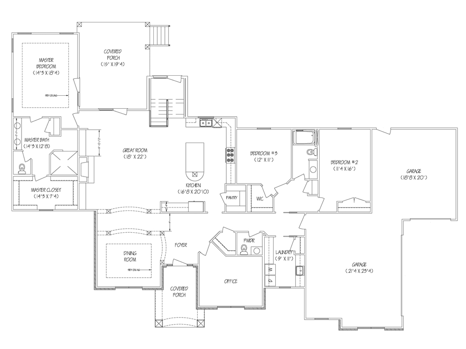
| This amazing home boosts 2,800 sq. ft. just on the first floor, where it features 3 bedrooms, a large den, a formal dinning room, a huge kitchen open to the great room. The wide open staircase allows for a partial walk out as it leads to the full finished lower level. In the lower level you’ll find 2 additional bedrooms, a full bath, a huge rec room, a full bar, and a huge storage room. You will love this home from the moment you step foot on the covered front porch. There are loads of extras to enjoy, from its gas fireplace, built in cabinets, solid hardwood floors, arches, and columns, and the large veranda on the back of the home...and did we mention the amazing kitchen! Beautifully designed yet extremely functional, equipped with double ovens, a walk in pantry, loads of cabinets for storage, and that massive island that anyone would kill to have. This floor plan accommodates any size of family whether you have children at home or they’re all grown, its design invites you to feel right at home yet with its spacious layout there’s plenty of room to entertain a crowd. | ![]() |
FEATURES2,800 Square Feet View Floor Plan |
|
![]() |
![]() |
![]() |
| The Lexington 3 Bedrooms, 2 1/2 Baths 3,025 Square Feet |
The Del Monte Manor 3 Bedrooms, 2 1/2 Baths Full Finished Basement |
The Nicole |
| More | More | More |
| 937-492-8640 937-440-0605 937-394-7775 Fax: 937-394-7776 |
Shreves Construction PO BOX 792 Sidney, OH 45365 |
![]() |
![]() |













